Lotto edificabile con progetto approvato di 3 unità indipendenti

ModenaMarzaglia - Terreno Edificabile in vendita
145.000 €
Caratteristiche principali
550 m²
Superficie
10
Locali
Descrizione
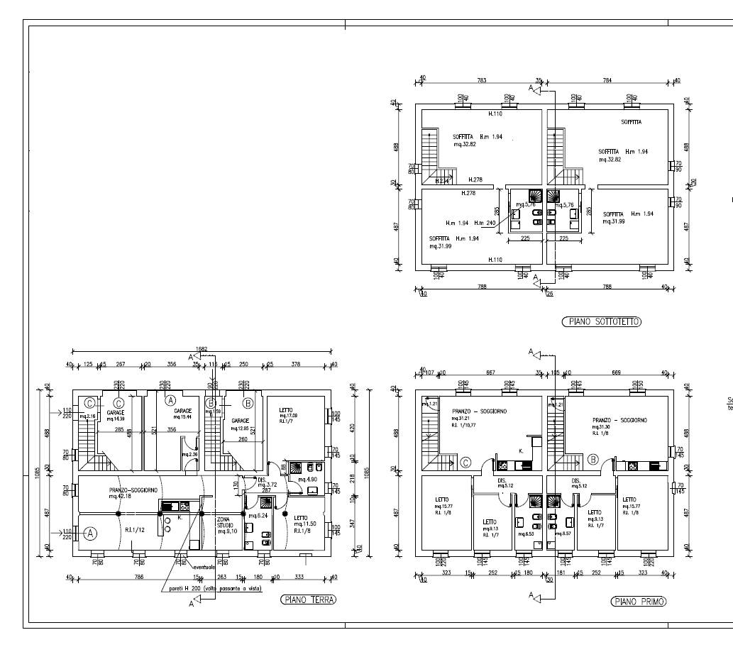
Rif.S5032 - Zona Marzaglia Nuova – proponiamo in vendita lotto edificabile di circa 550 mq con progetto già approvato per la realizzazione di 3 unità abitative indipendenti, ideale per imprese o investitori.

Progetto approvato per:

Abitazione A: 97,10 mq

Abitazione B: 70,53 mq

Abitazione C: 69,48 mq

Completano il progetto garage e posti auto a servizio delle unità.

Soluzione pronta per essere sviluppata, inserita in un contesto residenziale in espansione, comodo ai principali collegamenti e servizi.
Ottima opportunità per sviluppo immobiliare chiavi in mano.
“Le immagini sono puramente indicative e rappresentano un’ipotesi progettuale.”
Richiesta euro 145.000
Per maggiori informazioni 3408207926
Caratteristiche
Codice:
S5032
Città:
Modena (Marzaglia)
Categoria:
Terreno Edificabile
Locali:
10
Mq:
550
Classe energetica:
Non applicabile
Planimetrie
Video
Mappa
Strada chiesa di Marzaglia, 12 - Modena (MO)
Cookie preference